
2022
Vulcan Block 37
client
Vulcan Real Estate
type
Workplace/
location
Seattle, WA
Office
320,000 SF
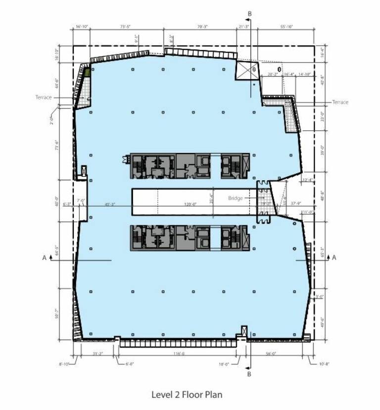
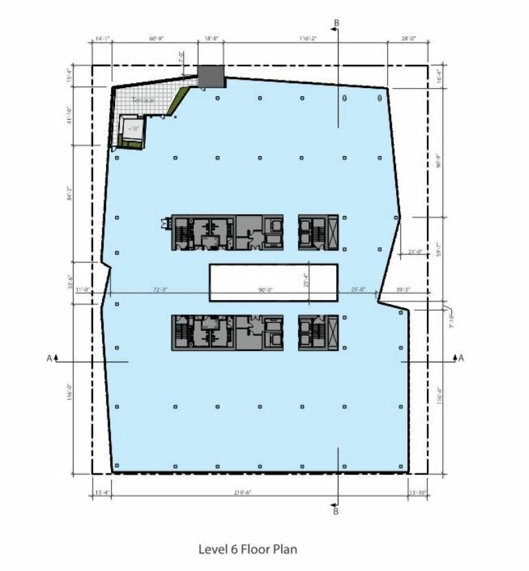
Just a stone’s throw from the shore, Block 37 will occupy one of the closest development sites to Lake Union. Flanked by Google, The Allen Institute for Brain Science, The Center for Wooden Boats and Lake Union Park, when complete the project will infuse the neighborhood with over 300,000 square feet of creative, connected office space above a diverse mix of retail and site amenities.

T
oday, the ancient shoreline is made manifest at Block 37 by primary forms that appear eroded, carved and weathered. A wraparound facade will shift and shimmer as one moves about the block, alluding to flowing water and its sculpting force. Building volumes descend towards the lake and step up towards the city, while the ground plane and site features extend the natural quality of the lakeshore and park onto the site, knitting the building into this rich context where the lines between natural and man-made are often blurred.

M
ediating the unique boundary between lake and shore, park and city, grid and path, Block 37 expresses this unique edge condition
See More:
Workplace










